Expatriates' Housing Consulting - Tokyo, Japan +81-(0)3-5315-4931

ID#: 97140
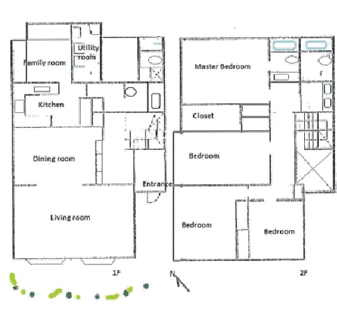
Property: Town-house - Hiroo, Shibuya-ku, Tokyo
Transportation: 13 min. to Hiroo on Hibiya line
15 min. to Ebisu on Hibiya/Yamate line
Rent: 850,000 yen (includes 1 Parking Space)
Floor Space: 240.90 Square Meters
4 Bedrooms, 2.5 Bathrooms
Completion: Dec-1993
Others: 4 months' deposit
Fixed Term Lease Contract For 3 years
1 month's agency fee
Available: Not fixed yet
Facility: AC Heating, Dishwasher, Dryer, Oven, Refrigerator

Actual appearance may differ from photos.

Actual layout may differ from this floor plan.