Expatriates' Housing Consulting - Tokyo, Japan +81-(0)3-5315-4931

ID#: 97145
Property: High-rise Apt. - Kamiosaki, Shinagawa-ku, Tokyo
Transportation: 1 min. to Meguro on Nanboku/Toei Mita/Yamate line
Rent: 362,000 yen
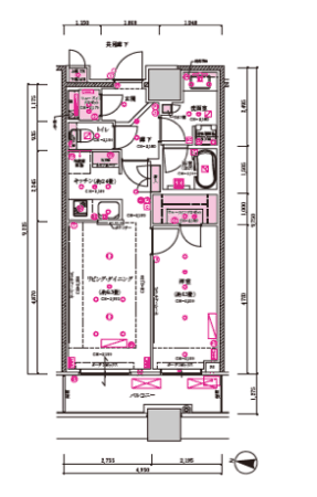
Floor Space: 46.60 Square Meters
2 Bedrooms, 1 Bathroom
Completion: Dec-2017
Others: 8,000 yen for Maintenance fee
1 month's deposit, 1 month's key money, 1 month's renewal fee
Fixed Term Lease Contract For 2 years, Re-Contract Possible
1 month's agency fee
Available: Not fixed yet
Facility: Elevator, AC Heating, Floor heating, Garbage Disposer, Security system, TV Service (CATV), Water purifier

Actual appearance may differ from photos.

Actual layout may differ from this floor plan.